A revised development application has been lodged for a high-rise apartment building at the heritage-listed former bread factory site in Fortitude Valley.
Application Details For Warry Street Site
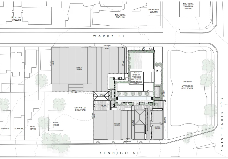
The proposal relates to 36 Warry Street within the complex known as The Baker’s Grounds. An associated property at 39 Kennigo Street is also listed.
The development application, numbered A006963038, was submitted on 17 February 2026 and is recorded as in progress. It seeks approval to carry out building work and a material change of use, with the assessment listed at code level. RG Property Pty Ltd is named as the primary applicant, with Urbis Pty Ltd identified as consultant.

Background Of The Heritage Complex
The brick complex was originally constructed in 1916 as Keating’s Bread Factory. Bread production ceased around the end of World War II.
Parts of the former ovens and stables used for horse deliveries remain on site. The property was listed as a local heritage place in 2004. The site sits between Warry Street and Kennigo Street, about 250 metres from Victoria Park. It is currently used largely as office space under the name The Baker’s Grounds.

Revised Tower Plans In Fortitude Valley
Updated plans describe a residential tower containing 100 apartments. The building height has been reported in two different ways, with one account describing 17 storeys and another referring to 20 storeys.
The revised proposal follows an earlier 15-storey scheme approved in December 2024, which was reported as allowing 111 units. The updated plan reduces the residential yield to 100 apartments. Design documentation for the revised proposal has been prepared by DAH Architecture.

Planning Status And Next Steps
Process milestones include the commencement of the confirmation period on 27 February 2026 and a properly made date of 2 March 2026. A decision notice date is not yet recorded. No construction start date has been confirmed, and existing tenancies continue to operate at the Fortitude Valley site while the application remains under assessment.
Published 3-Mar-2026











